Italiano
250.000 €

Negozio in vendita, ottima visibilità e posizione strategica alle porte di Como

Negozio in vendita • Como - Via Canturina
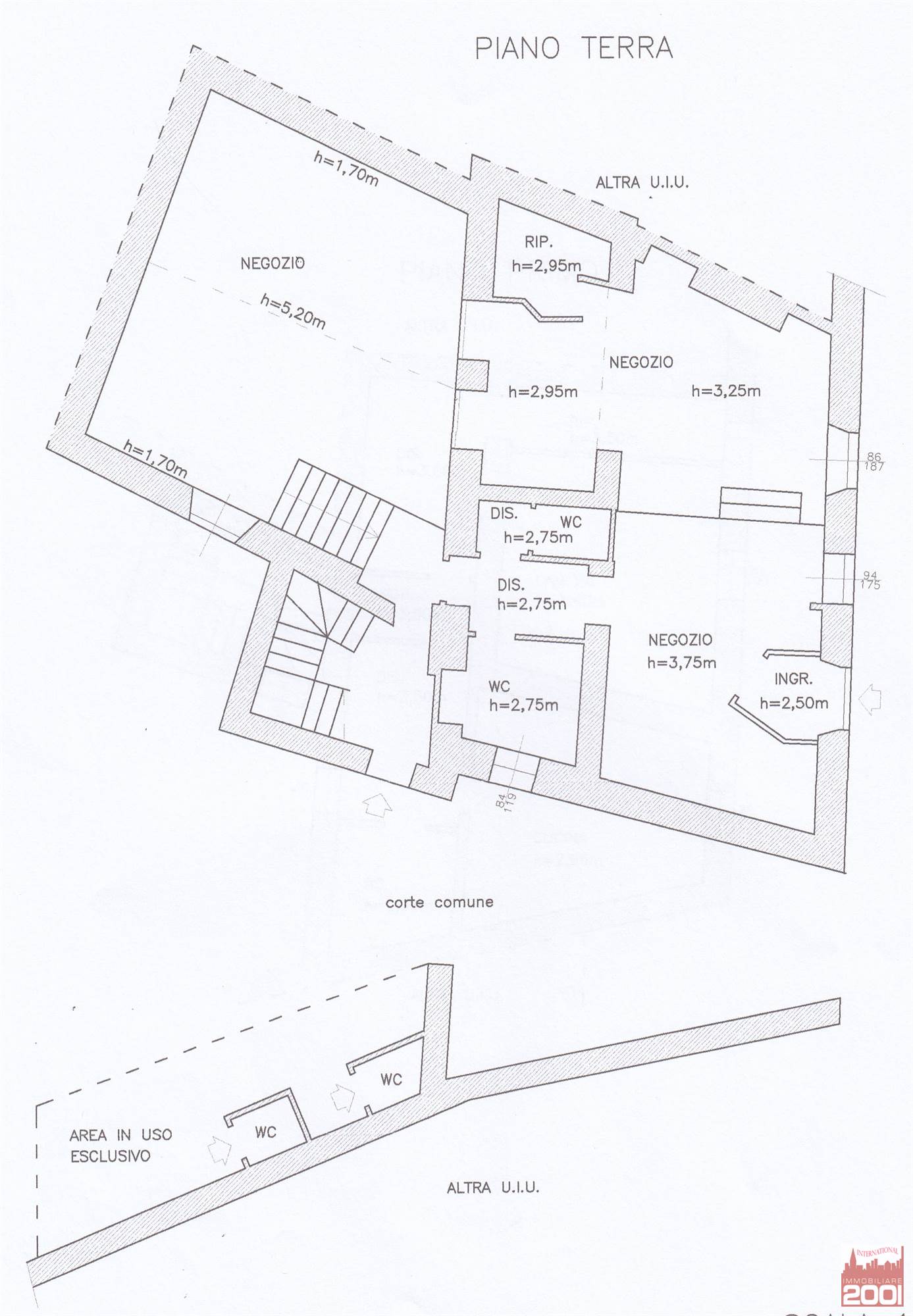
In una posizione strategica a pochi minuti dal centro di Como, all’interno di una caratteristica corte lombarda e in una zona ben servita dai principali collegamenti stradali, proponiamo in vendita un ampio locale commerciale al piano terra, attualmente adibito a negozio/ristorante.
L’immobile si presenta in buone condizioni generali, con ingresso indipendente e vetrina su strada, ed è inserito in una porzione di casa senza spese condominiali. Grazie alla sua versatilità e alla disposizione interna, è ideale per diverse attività: negozio, ufficio, studio professionale, laboratorio o ristorazione.
L’ambiente è ampio, facilmente personalizzabile e si presta anche a essere trasformato secondo le specifiche esigenze dell’acquirente.
Possibilità di acquistare, separatamente, anche l'appartamento trilocale al primo piano, disposto su due livelli (primo piano + sottotetto), già ristrutturato in gran parte e dotato di spazi ampi e luminosi. Una soluzione interessante per chi desidera unire attività lavorativa e abitazione nello stesso stabile, oppure per chi cerca un investimento con potenziale di sviluppo.
Un’opportunità rara per chi è alla ricerca di uno spazio commerciale indipendente, in un contesto tranquillo ma comodo con il centro città.
Caratteristiche principali
Codice
V002679
Città
Como
Categoria
Negozio
Prezzo
250.000 €
Locali
3
Bagni
2
Mq
150
Posti auto
1
Classe energetica
G
Stato Immobile
Ristrutturato
Grado
Medio
Posizione
Centro
Orientamento
Sud Est
Lati Liberi
2
Arredi
Non Arredato
Riscaldamento
Autonomo
Tipo Riscaldam.
Caldaia
Tipo Impianto
Radiatori
Fonte Energetica
Metano
Acqua Calda
Autonoma
Raffrescamento
Split
Infissi
Legno
Serramenti
Buono
Pavim. Cucina
Ceramica
Pavim. Bagno
Ceramica
Accesso Disabili
Nessuna Barriera

Accessori: Aria Condizionata, Camino, Passaggio Automobilistico, Passaggio Pedonale, Ripostiglio

Mappa
Via Canturina , Como (CO)
Video
Virtual tour 360°
Richiedi informazioni
Invia
Condividi su
Cookie preference