Italiano
4.170 €

Grande ufficio direzionale a Cantu'

Ufficio in affitto • Cantù - Piazza Garibaldi
Cantù, in pieno centro storico, nell’elegante palazzo della Nuova Permanente Mobili - oggi Erre Palace- in posizione dominante e centralissima con affaccio su piazza Garibaldi, comodo con tutti i principali punti d’interesse e le attività ivi collocate, proponiamo in locazione ampio ufficio direzionale di generose metrature.
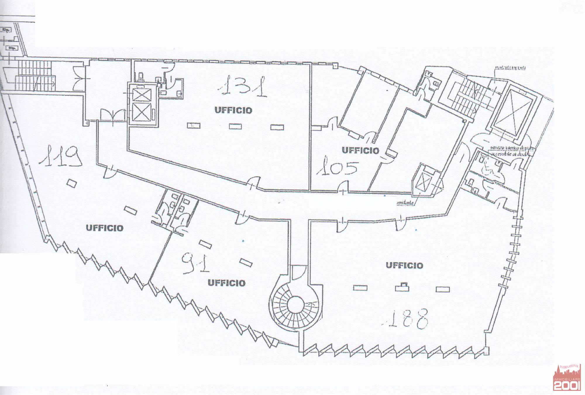
L’immobile offerto occupa tutto il 4° e penultimo piano dell’edificio, servito da doppio ascensore, provvisto di montacarichi con apposito vano per carico/scarico; l’ufficio si sviluppa su un totale di 634 mq commerciali, suddiviso in quattro grossi ambienti openspace molto ariosi e luminosi, che ben si prestano alle più disparate esigenze di riorganizzazione degli spazi interni, in vista di un’opportuna ristrutturazione.
A tal proposito, la Proprietà è disponibile a concorrere in misura massima del 50% alle spese sostenute da parte dell’inquilino entrante per la ristrutturazione dell’immobile, dietro espressa rinunzia da parte del futuro Conduttore ad esercitare il diritto di recesso anticipato dal contratto di locazione per i primi sei anni dello stesso; in tal caso, la Proprietà si riserva comunque il patrocinio della D.L. per qualunque intervento di ristrutturazione necessario.
Completano il piano un ulteriore ufficio già suddiviso in quattro locali e sette bagni.
Immobile termoautonomo, spese condominiali contenute, provvisto di sistemi di videosorveglianza e antifurto con predisposizione rete dati.
Il presente ufficio costituisce un’opportunità ideale e su misura per qualunque azienda del terziario che necessiti di una grande sede di rappresentanza ubicata in un contesto curato, moderno e funzionale. Ad oggi, ErrePalace è già stato scelto quale sede delle proprie filiali da importanti istituti del mondo della finanza e delle assicurazioni, oltre che da decine di liberi professionisti che hanno scelto le nostre innovative ed imbattibili soluzioni “coworking”.
Libero subito!
Si precisa che il contenuto del presente annuncio ha finalità unicamente illustrative e non possiede valenza contrattuale alcuna.
Caratteristiche principali
Codice
A001572
Città
Cantù
Categoria
Ufficio
Prezzo
4.170 €
Locali
7
Bagni
7
Mq
634
Piano
4
Classe energetica
F
Stato Immobile
Da Ristrutturare
Grado
Signorile
Posizione
Centro Storico
Panorama
Vista Monumento
Orientamento
Nord Ovest Sud Est
Lati Liberi
4
Arredi
Non Arredato
Riscaldamento
Autonomo
Tipo Riscaldam.
Pompa di Calore
Tipo Impianto
Aria
Fonte Energetica
Metano
Acqua Calda
Assente
Raffrescamento
Split
Infissi
Acciaio
Serramenti
Buono
Pavim. Bagno
Linoleum
Pavimento
Parquet
Cauzione
Tre Mesi
Canoni Anticipati
Un Mese
Tipo Contratto
6+6 Anni
Accesso Disabili
Nessuna Barriera
Accesso interno disabili
Pieno accesso
Tipo Registr.
Tradizionale
Isolamento
Non presente
Isolamento termico
Nessuno
Isolamento acustico
Nessuno

Accessori: Antifurto, Ascensore, Bagno Handicap, Cancello Elettrico, Doppi Vetri, Passaggio Automobilistico, Passaggio Pedonale, Rete Dati, Video Citofono, Video Sorveglianza

Mappa
Piazza Garibaldi , Cantù (CO)
Video
Virtual tour 360°
Richiedi informazioni
Invia
Condividi su
Cookie preference