Italiano
800 €

Luminoso ufficio a Cantù

Ufficio in affitto • Cantù - Via Corridoni , 3
A Cantù, a pochi passi dal centro storico, proponiamo in locazione un ufficio molto ampio e luminoso.
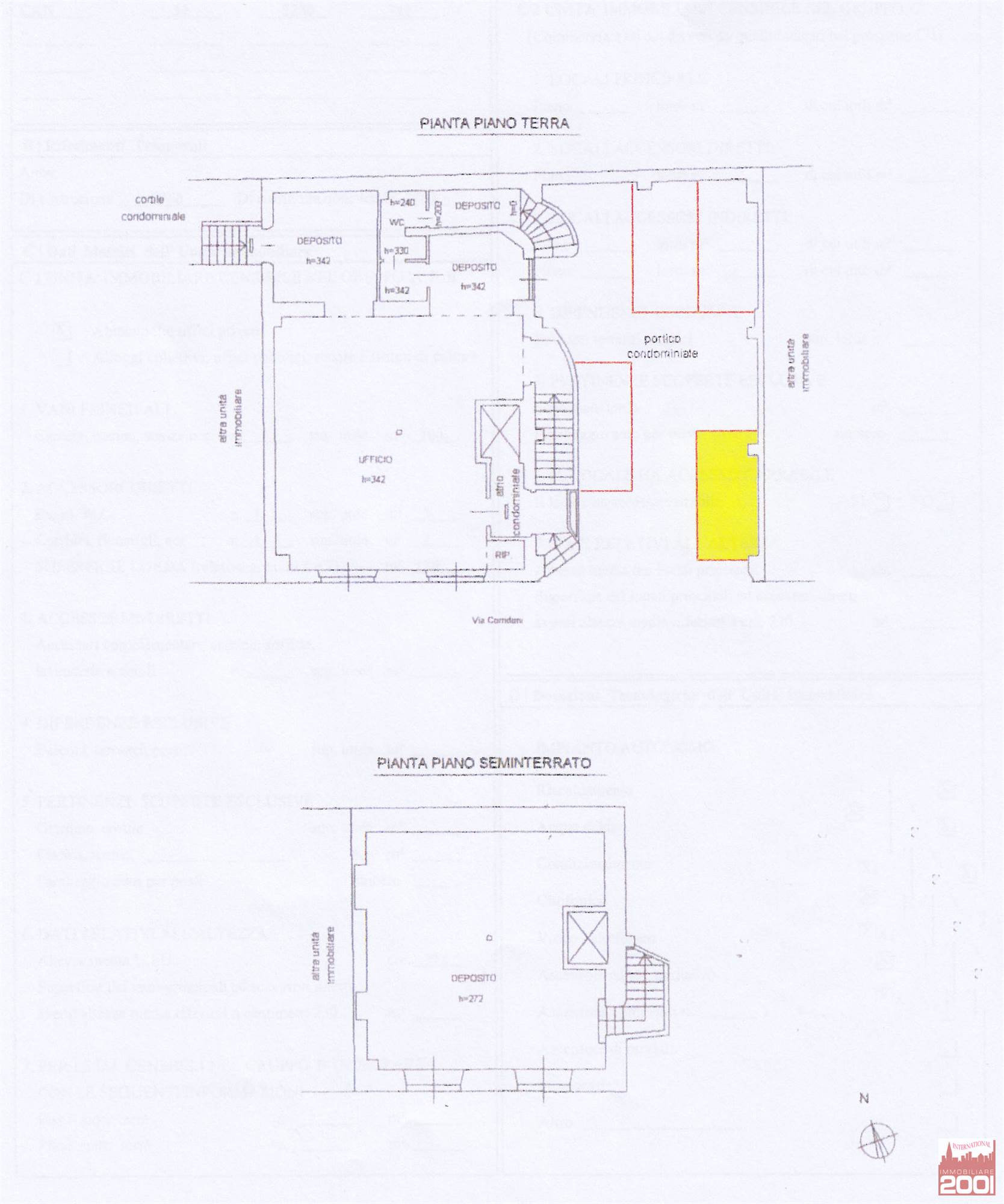
L’immobile è disposto al primo piano ed è libero sui due lati.
La soluzione è composta da:
Ingresso con porta blindata, ampio open space con antibagno e bagno.
Al piano terra compreso nel prezzo è presente un comodo posto auto coperto.
Il riscaldamento è autonomo con ventilconvettori.
Da vedere.
Caratteristiche principali
Codice
A000938
Città
Cantù
Categoria
Ufficio
Prezzo
800 €
Locali
1
Bagni
1
Mq
120
Posti auto
1
Piano
1
Classe energetica
G
82
Stato Immobile
Ristrutturato
Grado
Medio
Posizione
Centro
Panorama
Vista Giardino
Lati Liberi
2
Arredi
Non Arredato
Riscaldamento
Autonomo
Tipo Riscaldam.
Ventilconvettore
Acqua Calda
Autonoma
Infissi
PVC Doppio Vetro
Serramenti
Ottimo
Pavimento
Ceramica
Cauzione
Tre Mesi
Canoni Anticipati
Un Mese
Tipo Contratto
6+6 Anni
Accesso Disabili
Nessuna Barriera

Accessori: Aria Condizionata, Ascensore, Cancello Elettrico, Doppi Vetri, Passaggio Automobilistico, Passaggio Pedonale, Porta Blindata, Rete Dati, Ripostiglio

Mappa
Via Corridoni 3, Cantù (CO)
Video
Richiedi informazioni
Invia
Condividi su
Cookie preference